


01. 基本尺寸:
13340*6000*6000 mm
02. 占地面积 :
80.04m²
03. 基础配置 :
内容:裸水管,内部集成板、墙面、吊顶,基础照明,地面PVC地板、基础皮肤、内部电箱,五孔插座
04. 选配配置:
(a)店招灯箱
(b)延伸设计
(c)外摆系统
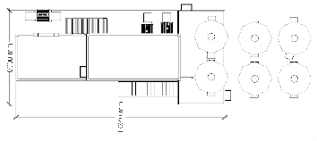
05.平面图( 纯手工测量存在少许误差,具体以实际情况为准 ):

上海市静安区广中路788号上海大学延长校区秋实楼9楼906室
场景专线:400-100-2515
小程序
公众号
返回顶部
打开微信,点击底部的“发现”
使用“扫一扫”即可分享至朋友圈

